By Deacon Fritz Bauerschmidt, post originally appeared May 20, 2016; en español, February 27, 2026
[Pray Tell le brinda a sus lectores hispanos los artículos más leídos en inglés ahora también en español.
Pray Tell brings its Hispanic readers the most popular articles in English, now also available in Spanish. Find the article in English here.]
Recientemente, en Crux, el padre Dwight Longenecker publicó un artículo titulado “Por qué una iglesia católica debería parecerse a una iglesia católica” (“Why a Catholic church should look like a Catholic church”). Si bien contiene muchos elementos elogiables, tanto el título como el artículo en sí mismo incurren en una petición de principio respecto a qué significa “parecerse a una iglesia católica”. No conozco a nadie que defienda la idea de que “una iglesia católica no debería parecerse a una iglesia católica” (excepto quizás un católico en una situación donde la Iglesia esté prohibida). La cuestión no es si una iglesia católica debería parecerse a una iglesia católica, sino qué significa esto.
A primera vista, es loable apelar, como lo hace el padre Longenecker, al sentido común de la gente común para resolver la cuestión de qué significa parecerse a una iglesia católica. La suma total de factores que pueden influir en “parecerse a una iglesia católica” es amplia y variada, y no debe ignorarse la capacidad de las personas para percibir, en medio de esa amplia variedad, la Gestalt que define a una “iglesia católica”. Como dijo el juez Potter Stewart respecto a la pornografía: “Hoy no intentaré definir con más detalle el tipo de material que entiendo que se incluye en esa descripción abreviada, y quizás nunca logre hacerlo de forma inteligible. Pero lo reconozco cuando lo veo”. Así que, cuando el padre Longenecker dice que “una iglesia católica debería parecerse a una iglesia católica”, lo que en realidad quiere decir es algo así como “una iglesia católica debería parecerse a lo que el católico promedio cree que debería ser una iglesia católica”. Esto, por supuesto, plantea la cuestión de quién se considera un “católico promedio”, pero al menos la afirmación no da por sentado el problema.
Sin embargo, podría haber otras maneras de abordar la cuestión de qué significa “parecerse a una iglesia católica”. Una forma sería seguir el principio arquitectónico de que “la forma sigue a la función”. Esto no significa, como parecían pensar algunos ideólogos modernistas y sus opositores, que un edificio deba ser abiertamente funcionalista, despojado de todo lo que no sea funcional en el sentido más prosaico. Pero sí significa que la forma de un edificio debe facilitar su propósito.
Ahora bien, parte del propósito de una iglesia católica es fomentar cierta afectividad devocional al proporcionar un espacio para la oración personal que se nutra de la rica tradición católica de usar el espacio y la imagen para transmitir la sensación de la interacción entre la trascendencia y la inmanencia divinas. Por eso, una iglesia católica no puede ser funcionalista en el sentido de estar desprovista de toda ornamentación; una de sus funciones es dejar que su belleza hable de Dios a todos los que pasan por sus puertas.
Pero fomentar la afectividad devocional, si bien es importante, no es la función principal de una iglesia católica. Su función principal es proporcionar un lugar para la celebración de la liturgia —ya sea la liturgia eucarística, la Liturgia de las Horas o los demás Ritos de la Iglesia—. Por lo tanto, “parecer una iglesia católica” debería significar, principalmente, pero no exclusivamente, “parecer un lugar donde la liturgia de la Iglesia pueda celebrarse adecuadamente”.
El padre Longenecker alude a esto cuando escribe: “Aunque nuestra nueva iglesia está construida en estilo románico, no es simplemente un retroceso a la época anterior al Vaticano II. La disposición de los asientos está planificada alrededor de un altar central con buena acústica y visibilidad para facilitar la plena participación de los laicos en el culto”.
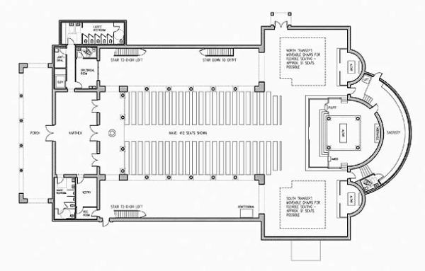
Todo esto es positivo. Sin embargo, aunque no sé si las imágenes y los planos que he encontrado en línea de la iglesia representan su forma final, me pregunto si, en algunos casos, la disyuntiva entre lo que la persona promedio entiende por “parecer una iglesia católica” y lo que exige la liturgia no ha llevado a decisiones desafortunadas. Por ejemplo, los bocetos del área bautismal parecen mostrar una pila bautismal similar a la que esperaría el católico promedio criado en una iglesia construida antes de 1970, pero que parece incapaz de adaptarse a la práctica de la inmersión total, que podría ser la forma preferida en el rito bautismal [un ejemplo del ressourcement (o regreso a las fuentes) al que apela el padre Longenecker] y que, al menos, debería ser posible para quienes la deseen.

De igual manera, los planos parecen mostrar tanto un ambón como un púlpito, pero ningún lugar obvio para la silla del presidente:

Hasta donde sé, la liturgia no exige un púlpito separado para la predicación, y dada la forma en que la homilía se integra en la liturgia de la palabra, se podría argumentar que la palabra debería predicarse desde el mismo lugar donde se ha proclamado. Así mismo, la liturgia parece presuponer que la silla desde la cual el celebrante preside la liturgia de la palabra debe ser parte integral del diseño del edificio, no estar escondida en un segundo plano. Además, los planos parecen mostrar poca consideración hacia aspectos como la provisión de un lugar para ritos como los escrutinios de las celebraciones de las Horas, con solo una pequeña área frente al altar donde estos podrían tener lugar (una de las debilidades del “católico promedio” en la comprensión de “parecer una iglesia católica” es que se centra casi por completo en la celebración de la misa y presta poca atención a otras liturgias).
En resumen, si bien la nueva iglesia para el padre Longenecker “parece una iglesia católica” en el sentido de lo que el católico promedio espera que sea una iglesia (y este es un sentido genuino e importante), no me queda claro que logre parecerse completamente a una iglesia católica en otro sentido (y yo diría más importante): el de tener una forma adaptada a las exigencias de la liturgia. Personalmente, no creo que estos dos sentidos de “parecer una iglesia católica” deban estar reñidos. Pero, al menos desde la distancia, parece que la nueva iglesia del padre Longenecker ha optado por el primer sentido de “parecer católica” en lugar del segundo sentido.
Deacon Fritz Bauerschmidt es profesor de Teología en Loyola University en Maryland, y diácono permanente de la Arquidiócesis de Baltimore, asignado a Cathedral of Mary Our Queen.

Please leave a reply.